header

Tin tức

Ốp kính cường lực thang máy là gì, ưu nhược điểm và giá bán
Cập nhật: 28-12-2022 10:22:03 | Tin tức | Lượt xem: 651

Cùng với sự phổ biến của thang máy thì sản phẩm ốp kính cường lực thang máy cũng nhanh chóng trở nên phổ biến và được lựa chọn sử dụng cho nhiều công trình kiến trúc, đây là vật liệu được ưu tiên nhất trong thời gian gần đây khi lắp đặt thang máy nhờ kết cấu chắc chắn, vẻ đẹp hiện đại,  chịu áp lực tốt và đặc biệt là mang đến cảm giác thoáng đãng, thoải mái hơn cho không gian vốn nhỏ hẹp của sản phẩm thang máy.  Xem thêm

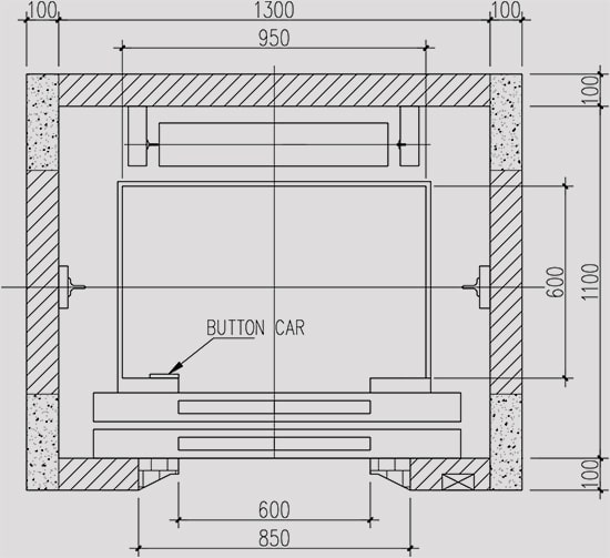
Kích thước thang máy gia đình: Tiêu chuẩn và bản vẽ chi tiết
Cập nhật: 26-12-2022 07:37:41 | Tin tức | Lượt xem: 898

Việc nắm chắc kích thước thang máy gia đình sẽ giúp kiến trúc sư và chủ nhà lựa chọn được đúng loại thang phù hợp với nhu cầu sử dụng cũng như diện tích ngôi nhà. Bài viết dưới đây sẽ cung cấp thông tin chi tiết về kích thước thang máy gia đình tiêu chuẩn * Thông tin bài viết chỉ mang tính tổng hợp và tham khảo, không phải ý kiến chuyên gia Xem thêm

15 Mẫu Thiết Kế Nhà 5x15m Có Thang Máy Được Chia Sẻ Từ Chuyên Gia
Cập nhật: 24-12-2022 07:19:49 | Kiến trúc & Thang máy | Lượt xem: 4047

Khi thiết kế nhà phố có thang máy cần lưu ý điều gì, cách bố trí mặt bằng công năng ra sao? Nếu bạn đang quan tâm đến những vấn đề này thì hãy cùng Thang máy Tân Phát tìm hiểu trong bài viết “Thiết kế nhà 5x15m có thang máy và những điều cần biết”. Xem thêm

Sự thông minh và tiện ích mà thang máy đem lại
Cập nhật: 03-11-2022 07:20:30 | Tin tức | Lượt xem: 550

Chúng ta đã có điện thoại thông minh (smartphone), đồng hồ thông minh (apple watch, miband…), …. dường như thời đại này mọi thứ đều được sản xuất và ứng dụng một cách thông minh, tối ưu nhất có thể. Thang máy thông minh – có thể bạn chưa nghe bao giờ, nhưng thật ra là nó đã được ra đời từ năm 1743 và tới ngày hôm nay đã trở thành một trong những phát minh vượt bậc của khoa học ngày nay. Xem thêm

Những quy đinh về bảo trì thang máy mà khách hàng cần quan tâm !
Cập nhật: 02-11-2022 09:39:00 | Tin tức | Lượt xem: 539

Bảo trì thang máy là dịch vụ bảo dưỡng kỹ thuật định kỳ để duy trì hoạt động liên tục của thang máy nhằm phát hiện sớm và ngăn chặn kịp thời những sự cố hỏng hóc có thể xảy ra. Thang máy có thể hoạt động ổn định và không cần tìm đến các đơn vị sửa chữa thang máy giúp bạn tiết kiệm chi phí và thời gian. Xem thêm

Vai trò của thang máy gia đình trong đời sống ngày nay
Cập nhật: 01-11-2022 07:33:03 | Tin tức | Lượt xem: 584

Thang máy gia đình là phương tiện di chuyển không còn xa lạ gì trong nhiều gia đình hiện nay. Với sự tiện lợi nhanh chóng tiết kiệm thời gian và công sức của con người, thang máy gia đình là phương tiện thực sự hữu ích đối với nhiều gì đình, nhất là những gia đình có người già, trẻ em, người mắc bệnh về khớp. Xem thêm

Thang máy gia đình không cần hố pit: 5 ưu điểm & 4 nhược điểm
Cập nhật: 24-10-2022 07:37:41 | Tin tức | Lượt xem: 742

Hố pit là phần âm của giếng thang so với mặt nền của tầng thấp nhất ngôi nhà. Hố pit dùng để lắp đặt phần chân đế của ray cũng như cơ cấu giảm chấn của cabin và đối trọng. Nhiều công trình nhà ở mới hiện nay có lắp đặt thang máy nhưng không cần đến hố pit, đặc biệt là các công trình cải tạo. Vậy nguyên lý hoạt động của thang máy gia đình không cần hố pit là gì, thang máy không hố pit có ưu điểm, nhược điểm gì và những công trình nào nên lắp đặt thang máy không hố pit? Xem thêm

Những lưu ý quan trọng khi lắp đặt và thiết kế thang máy cho nhà ống
Cập nhật: 24-10-2022 07:41:21 | Tin tức | Lượt xem: 561

Về cơ bản, việc lắp đặt thang máy trong nhà mang đến rất nhiều lợi ích. Đặc biệt đối với những gia đình có trẻ nhỏ, người già hoặc người khuyết tật, khó đi lại. Điều này sẽ càng thuận lợi hơn khi áp dụng với nhà ống. Bởi cầu thang trong nhà ống thường hẹp, việc di chuyển trên cầu thang không phải là dễ dàng. Lắp thang máy sẽ giúp đảm bảo sự an toàn cho các thành viên trong gia đình. Xem thêm

CẤU TRÚC CƠ BẢN CỦA LOẠI THANG MÁY CÁP KÉO
Cập nhật: 15-10-2022 02:34:01 | Tin tức | Lượt xem: 614

Thang máy cáp kéo là loại thang máy truyền thống, loại thang máy này có thể sử dụng cho các công trình xây dựng nhà cao tầng, nhà thấp tầng, các thang máy quan sát, thang máy ngoài trời. Cấu trúc cơ bản để lắp đặt được loại thang máy cáp kéo này như sau: Xem thêm

CÁC HÌNH THỨC CHO BẢO TRÌ THANG MÁY GIA ĐÌNH KHI HẾT HẠN BẢO HÀNH
Cập nhật: 15-10-2022 01:54:57 | Tin tức | Lượt xem: 601

Thang máy sau khi lắp đặt sẽ có thời gian bảo hành, thời gian bảo hành của từng thang sẽ phụ thuộc vào nhà cung cấp. Sau khi thang máy hết thời gian bảo hành các chủ sở hữu phải tiến hành kí hợp đồng bảo trì cho thang máy, hợp đồng bảo trì sẽ tiếp tục bảo dưỡng thang máy, duy trì sự hoạt động ổn định cho thang máy, đảm bảo an toàn cho thang máy và kéo dài tuổi thọ cho thang máy. Với thang máy gia đình, chủ sở hữu sẽ chịu toàn bộ chi phí bảo trì, bảo dưỡng thang máy, do đó họ cần tìm phương án bảo trì phù hợp với thang máy, đảm bảo lợi ích cho chủ sở hữu. Xem thêm

Thang máy gia đình có bền không? Làm gì để thang máy có tuổi thọ cao?
Cập nhật: 11-10-2022 06:54:52 | Tin tức | Lượt xem: 620

Thang máy gia đình có thể sử dụng trong nhiều năm, nhưng cũng giống như bất kỳ thiết bị cơ khí nào khác, sẽ có lúc cần phải thay thế, sửa chữa. Vậy thang máy dân dụng có tuổi thọ bao lâu? Có bền không, khi nào cần thay thế? Cùng Thang Máy Lam Sơn tìm hiểu trong bài viết này. Xem thêm

Điều bạn chưa biết về thang máy gia đình thủy lực
Cập nhật: 11-10-2022 06:11:49 | Tin tức | Lượt xem: 568

Khi nhắc đến hệ thống thang máy gia đình, hệ thống truyền động thủy lực là một lựa chọn phổ biến. Đặc biệt là cho các chủ nhà tìm kiếm chất lượng, an toàn và chuyến đi yên tĩnh nhất. Vậy thang máy gia đình thủy lực có những ưu nhược điểm nào mà được ưa chuộng như vậy? Thông tin trong bài viết dưới đây sẽ giúp bạn giải đáp câu hỏi này! Xem thêm

.
.
.