TMTP - Số lượng nhà cao tầng gia tăng có tác động lớn đến công tác phòng cháy chữa cháy và cứu nạn cứu hộ. Một trong các yếu tố mang tính giải pháp yêu cầu nghiêm ngặt về kỹ thuật chính là thang máy chữa cháy.
Quy định về phòng cháy chữa cháy (PCCC) liên quan đến thang máy được quy định cụ thể tại Thông tư 02/2021/TT-BXD Ban hành QCVN 06:2021/BXD quy chuẩn kỹ thuật quốc gia về an toàn cháy cho nhà và công trình. Theo đó, sẽ có các quy định về điều kiện của các tòa nhà cần lắp đặt thang máy chữa cháy, các yêu cầu kỹ thuật, bài trí không gian,… liên quan đến thang máy chữa cháy.
Trước tiên, chúng ta cần hiểu khái niệm của thang máy chữa cháy: “Thang máy được lắp đặt chủ yếu để vận chuyển người nhưng được trang bị thêm các hệ thống điều khiển bảo vệ, thông tin liên lạc và các dấu hiệu để cho phép những thang máy đó được sử dụng dưới sự điều khiển trực tiếp của lực lượng chữa cháy đến được các tầng của nhà khi có cháy xảy ra.”
Tại Khoản 3 về Đảm bảo an toàn cho người có nêu: Trong không gian của các buồng thang bộ, trừ các buồng thang không nhiễm khói, cho phép bố trí không quá hai thang máy chở người hạ xuống chỉ đến tầng 1 với các kết cấu bao che giếng thang làm từ các vật liệu không cháy.
Các giếng thang máy nằm ngoài nhà, nếu cần bao che thì phải sử dụng các kết cấu làm từ vật liệu không cháy.
Tại Khoản 4 về Ngăn chặn cháy lan quy định:
- Các kết cấu bao che của các giếng thang máy (trừ các giếng đã nêu trong Khoản 3 điều 4.6) và các phòng máy của thang máy (trừ các phòng trên mái), cũng như của các kênh, giếng và hộp kỹ thuật phải đáp ứng các yêu cầu đặt ra như đối với các vách ngăn cháy loại 1 và các sàn ngăn cháy loại 3. Không quy định giới hạn chịu lửa của các kết cấu bao che giữa giếng thang máy và phòng máy của thang máy.
Khi không thể lắp các cửa ngăn cháy trong các kết cấu bao che các giếng thang máy nêu trên, phải bố trí các khoang đệm hoặc các sảnh với các vách ngăn cháy loại 1 và sàn ngăn cháy loại 3 hoặc các màn chắn tự động đóng các lỗ cửa đi của giếng thang khi cháy. Các màn chắn này phải được làm bằng vật liệu không cháy và giới hạn chịu lửa của chúng không nhỏ hơn E 30.
Trong các nhà có các buồng thang bộ không nhiễm khói phải bố trí bảo vệ chống khói tự động cho các giếng thang máy mà tại cửa ra của chúng không có các khoang đệm ngăn cháy với áp suất không khí dương khi cháy.
- Trong các tầng hầm hoặc tầng nửa hầm, trước lối vào các thang máy phải bố trí các khoang đệm ngăn cháy loại 1 có áp suất không khí dương khi cháy.
Tại Khoản 6 về Chữa cháy và cứu nạn có quy định:
- Nhà và công trình phải bảo đảm việc chữa cháy và cứu nạn bằng các giải pháp: kết cấu, bố trí mặt bằng – không gian, kỹ thuật – công trình và giải pháp tổ chức.
Việc bố trí và lắp đặt các thang máy chữa cháy phải bảo đảm những quy định cơ bản sau:
- Không được sử dụng các thang máy chủ yếu để vận chuyển hàng hóa để làm thang máy chữa cháy.
- Ở điều kiện bình thường, thang máy chữa cháy vẫn được sử dụng để chở người. Thang máy chữa cháy có thể được bố trí với một sảnh thang máy riêng hoặc trong một sảnh chung với các thang máy chở người và hợp lại với nhau bằng một hệ thống điều khiển tự động theo nhóm.
- Có số lượng được tính toán đủ để khoảng cách từ vị trí các thang máy đó đến một điểm bất kỳ trên mặt bằng tầng mà nó phục vụ không vượt quá 60m.
- Nếu chỉ có một thang máy chữa cháy thì thang máy đó ít nhất phải đến được tất cả các tầng kế cận với tầng đang cháy của nhà.

Việc tiếp cận, sử dụng thang máy để chữa cháy
- Nếu có nhiều thang máy chữa cháy được bố trí chung trong một giếng thang thì các thang máy có thể phục vụ cho các khu vực khác nhau của nhà với điều kiện phải thể hiện rõ vùng được phục vụ trên mỗi thang máy đó.
- Trong mọi trường hợp, hình thức phục vụ của các thang máy chữa cháy phải giống nhau và thông dụng, ví dụ thang máy chỉ phục vụ các tầng lẻ hoặc các tầng chẵn hoặc tất cả các tầng.
- Nếu có các tầng lánh nạn thì mỗi tầng đó phải được phục vụ bởi ít nhất một thang máy chữa cháy.
- Ở chế độ hoạt động bình thường, cửa các thang máy chữa cháy không được mở vào những tầng lánh nạn đó còn cửa tầng của các giếng thang tại những tầng lánh nạn đó phải thường xuyên được khóa và chỉ được tự động mở khóa khi chuyển sang chế độ phục vụ lực lượng chữa cháy.
- Trong trường hợp có cháy, các thang máy chữa cháy phải bảo đảm để người lính chữa cháy:
-
Là người duy nhất được quyền kiểm soát và vận hành để cùng với trang thiết bị của mình tiếp cận đến đám cháy một cách dễ dàng, quen thuộc, an toàn và nhanh chóng.
-
Được bảo vệ an toàn khi sử dụng trước tác động của lửa và khói bằng các giải pháp thích hợp, đặc biệt là khi ra khỏi các thang máy đó.
-
Có lối đi thông thoáng và an toàn để tiếp cận đến các thang máy đó cũng như đến các sàn được những thang máy đó phục vụ.
-
Không phải di chuyển quá hai tầng để tiếp cận đến tầng có thể bị cháy bất kỳ của nhà.
-
Được bảo vệ trong các giếng thang máy riêng (không chung với các loại thang máy khác) và trong mỗi giếng thang máy như vậy chỉ được bố trí không quá 3 thang máy chữa cháy. Kết cấu bao bọc giếng thang máy phải có giới hạn chịu lửa không nhỏ hơn REI 120.
-
Sảnh thang máy chữa cháy là một khoang đệm bảo đảm tất cả các quy định sau:
-
Có diện tích không nhỏ hơn 4m2;
-
Khi kết hợp với các sảnh của buồng thang bộ không nhiễm khói thì diện tích không nhỏ hơn 6m2;
-
Được bao bọc bằng các vách ngăn cháy loại 1;
-
Có lắp đặt họng chờ cấp nước DN 65 dành cho lực lượng chữa cháy chuyên nghiệp;

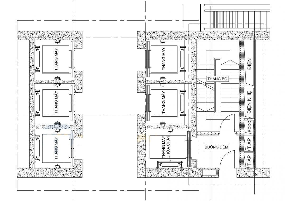
Thang máy chữa cháy chung buồng đệm với thang bộ thoát nạn
- Việc bố trí thang máy chữa cháy phải dự tính được đường di chuyển của đội chữa cháy chuyên nghiệp và bảo đảm đội chữa cháy tiếp cận được tất cả các gian phòng trên tất cả các tầng của nhà.
- Sức chở của thang máy chữa cháy không được nhỏ hơn 630 kg đối với nhà chung cư nhóm F1.3 và không nhỏ hơn 1 000 kg đối với nhà sản xuất và nhà công cộng khác.
- Tốc độ di chuyển của thang máy chữa cháy không được nhỏ hơn H/60 (m/s), trong đó H là chiều cao nâng (m).
- Kết cấu bao che của cabin thang máy chữa cháy phải được làm từ vật liệu không cháy hoặc cháy yếu.
Tất cả các tầng hầm trong nhà có từ 2 đến 3 tầng hầm, phải được trang bị hệ thống liên lạc khẩn cấp hai chiều giữa phòng trực điều khiển chống cháy tới những khu vực cần thiết, trong đó có các thang máy chữa cháy.
Quy định bổ sung về an toàn cháy đối với một số nhóm nhà cụ thể
Đối với một số nhóm nhà cụ thể cũng có các quy định bổ sung đối với thang máy chữa cháy và các bộ phận liên quan, cụ thể:
1. Đối với nhà (có chiều cao PCCC từ trên 50m đến 150m) thuộc nhóm nguy hiểm cháy theo công năng F1.2, F4.3 và nhà hỗn hợp
- Các sảnh thang máy phải được ngăn cách với các hành lang và các phòng bên cạnh bằng các vách ngăn cháy có giới hạn chịu lửa theo quy định tại A.2.24.
Vật liệu của các bộ phận cabin thang máy phải được cấu tạo như thang máy chữa cháy.
- Phải bố trí thang máy chữa cháy trong các giếng thang riêng biệt, có sảnh thang máy độc lập. Lối ra từ thang máy này đi ra ngoài nhà không được bố trí đi qua sảnh chung.
Số lượng thang máy chữa cháy cho mỗi khoang cháy phải được tính toán đủ để khoảng cách từ vị trí các thang máy đó đến một điểm bất kỳ trên mặt bằng tầng mà nó phục vụ không vượt quá 45m.
Các cấu kiện bao bọc cabin thang máy chữa cháy (tường, sàn, trần, cửa) phải được làm từ vật liệu không cháy hoặc từ nhóm vật liệu Ch1.
Vật liệu ốp lát hoàn thiện bề mặt các cấu kiện bao bọc cabin áp dụng như cho các gian phòng theo quy định tại A.2.25.
- Giới hạn chịu lửa của kết cấu giếng thang máy và buồng máy của thang máy lấy theo quy định tại A.2.24.

(REI là khả năng chống cháy của một cấu trúc, vật thể. Khi nói tới REI có nghĩa là nói tới khả năng chịu lửa, chịu nhiệt độ. Ví dụ như REI 120, có nghĩa là khả năng chịu lửa của vật thể, cấu trúc đó nâng giới hạn chịu lửa lên 120 phút.)
- Các cửa đi của sảnh thang máy và cửa đi của gian máy của thang máy phải là các cửa không lọt khí, khói.
- Hệ thống điện: Điện cấp cho các hệ thống thiết bị kỹ thuật, trong đó có thang máy chữa cháy phải bảo đảm duy trì sự làm việc của các thiết bị đó trong thời gian không ít hơn 3 giờ kể từ khi có cháy và phải được lấy từ 3 nguồn cấp độc lập.
2. Đối với nhà thuộc nhóm nguy hiểm cháy theo công năng F1.3 (nhà chung cư) có chiều cao PCCC từ trên 75m đến 150m
- Các giếng thang máy của phần căn hộ không được thông với phần còn lại của nhà. Các giếng của hệ thống kỹ thuật (kể cả đường ống rác) của phần căn hộ và phần còn lại của nhà phải riêng biệt.
- Việc bảo vệ chống khói cho nhà, hệ thống báo cháy và chữa cháy tự động thực hiện theo các quy định bổ sung dưới đây:
- Hệ thống báo cháy tự động phải báo rõ địa chỉ của từng căn hộ. Trong các phòng của căn hộ và các hành lang tầng, kể cả sảnh thang máy phải lắp đặt đầu báo khói.
- Cần trang bị hệ thống báo cháy, thiết bị, phương tiện chữa cháy tự động trong các kênh, giếng kỹ thuật điện, thông tin liên lạc và giếng kỹ thuật khác có nguy hiểm cháy.
- Nguồn điện cấp cho hệ thống bảo vệ chống cháy gồm: thang máy phục vụ chuyên chở lực lượng, phương tiện chữa cháy; hệ thống bảo vệ chống khói; hệ thống báo cháy, chữa cháy tự động; phải được lấy từ các tủ điện độc lập hoặc các bảng điện riêng với mầu sơn khác nhau đi theo hai tuyến riêng biệt tới thiết bị phân phối của từng khoang cháy.
Quy định bảo vệ chống khói các khu vực liên quan đến thang máy
Việc bảo vệ chống khói phải cung cấp không khí từ bên ngoài vào các khu vực bao gồm:
- Trong giếng thang máy (khi không thể hỗ trợ cấp khí các khoang đệm trong điều kiện có cháy) ở những nhà có buồng thang không nhiễm khói.
- Trong khoang đệm của thang máy chữa cháy.
- Trong các khoang đệm trước thang máy (bao gồm cả thang máy) trong các tầng hầm và tầng nửa hầm.
Lưu lượng cấp không khí dùng để bảo vệ chống khói cần được tính toán để bảo đảm áp suất không khí không thấp hơn 20Pa ở các vị trí:
- Phần dưới của giếng thang máy khi các cửa vào giếng thang máy đều đóng kín ở tất cả các tầng (trừ tầng dưới cùng).
- Các khoang đệm trên tầng có cháy trong các nhà có buồng thang bộ không nhiễm khói loại N3, khi lối vào hành lang hoặc sảnh tại các tầng hầm, phòng chờ thang máy và các khoang đệm trước thang máy có một cửa mở, còn ở tất cả những tầng khác cửa đều đóng.
Khi tính toán các thông số của hệ thống cấp không khí vào phải kể đến:
- Độ dư của áp suất không khí không thấp hơn 20Pa và không lớn hơn 50Pa – ở các giếng thang máy.
- Các buồng thang máy thông với chiếu tới của thang bộ và khi các cửa thang máy ở tầng đang xét để mở.
>>> Có thể bạn quan tâm: 8 Sự Cố Thang Máy Người Dùng Cần Lưu Ý
Thang Máy Tân Phát là một trong những công ty chuyên kinh doanh, lắp đặt thang máy hàng đầu tại Quảng Ninh. Tân Phát cam kết đem lại cho khách hàng những sản phẩm thang máy chất lượng nhất với nhiều ưu đãi và chính sách mua hàng hấp dẫn. Liên hệ ngay để nhận được những lời tư vấn giá trị đến từ kỹ sư nhiều kinh nghiệm:
- Bảo hành toàn bộ các thiết bị của thang máy lên tới 24 tháng.
- Tư vấn nhiệt tình, thiết kế, thi công trọn gói.
- Giá cả cạnh tranh nhất thị trường!
-----------------------------------
