Danh mục sản phẩm
Phụ kiện thang máy
Tin tức
Cập nhật: 12-08-2021 02:58:19 | Tin tức | Lượt xem: 763
Loại cửa thang máy thông dụng nhất là cửa mở tự động (mở trung tâm hoặc mở lùa về một phía), nhưng để lắp được thang máy cửa mở tự động thì yêu cầu chiều ngang hố thang phải rộng. Tuy nhiên nhiều công trình nhà cải tạo, hay xây mới nhưng diện tích nhỏ thì kích thước chiều ngang hố thang bé, không thể làm cửa tự động được, khi đó phải tính đến phương án thang máy gia đình cửa mở bằng tay.
Trước đây, cửa mở tay chủ yếu được ứng dụng trong các loại thang máy tải hàng (cửa sắt xếp) hay thang máy tải thực phẩm cửa mở tay trượt lên - xuống.
Tuy nhiên, trong thời gian gần đây, do nhu cầu thị trường cũng như thực tế xây dựng, sự phát triển của các thiết bị, loại cửa mở tay được ứng dụng cho cả phân khúc thang máy gia đình và đã đón nhận được những đánh giá tích cực từ người tiêu dùng.

Thang Máy Gia Đình Cửa Mở Bằng Tay - Giải Pháp Cho Hố Thang Hẹp Chiều Ngang
So về cấu tạo thì loại thang máy cửa mở tay đơn giản hơn nhiều so với cửa mở tự động, nếu nhìn qua thì giống như cửa mở thông phòng bình thường.
Cửa mở tay có cấu tạo bao gồm các bộ phận chính:

Cách sử dụng thang máy loại nhỏ lắp cho gia đình có kiểu cửa mở bằng tay cũng rất đơn giản:
Về ưu điểm:
Ưu điểm lớn nhất của loại thang máy này là có thể làm cửa thang máy rộng hơn so với loại cửa mở tự động, ngay cả khi hố thang quá bé, không thể làm cửa tự động thì giải pháp cửa mở tay vẫn hoàn toàn khả thi.
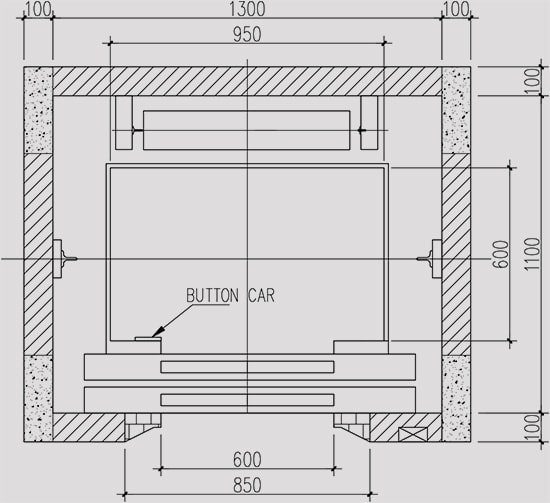
Ví dụ: Cửa thang máy yêu cầu phải rộng tối thiểu 60cm thì mới có thể sử dụng được (chiều rộng vai con người đều từ 50cm trở lên), mà để làm cửa thang được rộng 60cm với cửa tự động thì yêu cầu hố thang thông thủy phải đạt ít nhất 1300mm (xem bản vẽ bên dưới)

Còn với loại cửa mở tay, do không cần phần không gian để dấu phần cánh cửa khi mở ra theo chiều ngang, nên cửa thang làm được rất rộng.

Quý khách có thể tham khảo bản vẽ và thông số kỹ thuật trên để thấy tính ưu việt về mặt kích thước của loại thang cửa mở bằng tay.
Ví dụ: Chiều rộng hố thang chỉ 850cm nhưng vẫn làm được cabin kích thước 600cm và cửa thang rộng 600cm, đây là điều hoàn toàn bất khả thi nếu chọn loại cửa mở tự động.
Ngoài ra, do tốc độ thiết kế thấp và tải trọng nhẹ (nên sàn cabin cũng không dầy) cho nên đây là loại thang máy có pít nông, có thể gọi là thang máy có hố pít nông nhất trong các loại thang máy gia đình liên doanh.
Nhược điểm của thang máy cửa mở bằng tay
Giá thang máy gia đình cửa mở tay
Thang máy loại cửa mở tay có giá tương đương với loại thang cửa tự động, để tham khảo báo giá quý khách vui lòng liên hệ với nhân viên kinh doanh hoặc hotline Công ty thang máy Tân Phát: 0913.855.638 để được khảo sát và báo giá sát nhất với thực tế công trình.





Quý khách cần tư vấn lắp đặt thang máy gia đình cửa mở bằng tay vui lòng gửi yêu cầu vào hòm thư: thaiduongelevator0812@gmail.com hoặc gọi điện vào số điện thoại hotline: 0913.855.638 để được hỗ trợ tư vấn lắp đặt thang máy cụ thể cho từng công trình và báo giá cạnh tranh nhất.
CÔNG TY THANG MÁY TÂN PHÁT
Địa chỉ: số 531 đường Nguyễn Văn Cừ, P. Hồng Hải, Tp. Hạ Long, Quảng Ninh
Điện thoại: 0913.855.638
Website: thangmaytanphat.com