Danh mục sản phẩm
Phụ kiện thang máy
Tin tức
Cập nhật: 12-06-2021 01:43:58 | Tin tức | Lượt xem: 1297
Thang máy không phòng máy là loại thang máy mới hiện nay, loại thang này ra đời nhằm đáp ứng nhu cầu của những gia đình không có khả năng xây dựng cao tầng. Cấu tạo của loại thang máy không phòng máy dành cho gia đình là có động cơ nhỏ gọn, công suất từ 2.2kw đến 10kw, thiết kế không cần đến phòng máy, tải trọng từ 320kg đến 2000kg.

Thang máy có phòng máy và thang máy không phòng máy
Thang máy không phòng máy hoạt động theo nguyên lý dòng dọc, Một đầu cáp được liên kết với cabin và một đầu được nối với đối trọng. cabin và đối trọng chuyển động thông có động cơ thang máy, puly dẫn hướng.

Thiết kế thang máy không buồng máy
Khi nhận lệnh từ bảng điều khiển của các tầng tủ điều khiển cấp điện cho motor kéo làm cho puly ma sát quay, lúc đó cáp nâng sẽ tác động lên hệ thống treo làm cho cabin chuyển động lên xuống theo day dẫn hướng đến các tầng yêu cầu. khi cabin dừng ở tầng yêu cầu thì cửa cabin và cửa tầng đồng thời mở ra, cùng lúc thông qua hệ thống khóa liên động.

Nếu không may xảy ra trường hợp cabin vượt quá tốc độ cho phép thì bộ hạn chế tốc độ sẽ làm việc, bộ thắng cơ sẽ kẹp cabin thang máy và hãm tốc độ trên ray dẫn hướng nhằm hạn chế phản lực tác động lên cabin khiến cabin không chạy quá tốc độ.

Thang không buồng máy
Về ưu điểm: loại thang này thiết kế nhỏ gọn, phù hợp nhà cải tạo, không cần xây dựng phòng máy, động cơ nhỏ gọn, công suất nhỏ tiết kiệm điện năng. Hơn nữa dùng nam châm vĩnh cửa nên ít cần phải bảo trì, bảo dưỡng.
Nhược điểm: của loại thang này là cấu tạo thang máy gia đình không phòng máy gây khó khăn cho việc bảo trì do không có phòng máy cho thợ đứng thao tác.
Bên cạnh đó thì thang máy không phòng máy sẽ có giá thành không cao, tuổi thọ cũng không bằng so với thang máy gia đình có phòng máy.
Tuy có những ưu điểm nổi trội riêng, nhưng dòng thang máy không phòng máy vẫn được ưu tiên dùng cho những gia đình nhà phố không thể xây cao tầng được thì dùng loại thang này, còn đối với những công trình không bị hạn chế chiều cao thì nên sử dụng loại thang máy có phòng máy, vì loại thang máy này không chỉ có giá thì thấp hơn nhiều so với thang máy không phòng máy, mà loại thang này còn rất tiện dụng cho việc bảo trì, bảo dưỡng về sau. Hơn nữa loại thang này cũng có tuổi thọ lâu đời hơn so với thang máy không phòng máy. Vì vậy lời khuyên của các nhà sản xuất thang máy là những gia đình xây dựng không bị hạn chế chiều cao nên sử dụng loại thang máy có phòng máy.
Một số các câu hỏi thường gặp:
Thang máy không phòng máy là loại thang tiết kiệm chiều cao xây dựng được thiết kế không có buồng máy và sàn buồng máy phía trên. Động cơ thang máy được lắp đặt và đài I gác và kết cấu của hố thang máy.

Chiều cao trong thang máy thường được quan tâm là chiều cao OH ( Overhead). Chiều cao này đươc tính từ sàn tầng trên cùng lên đến sàn phòng máy. Đối với thang máy không buồng máy sử dụng OH = 3200mm. Chiều cao đặt động cơ khoảng 1000mm.
Về cơ bản thang máy có phòng máy có nguyên lý hoạt động giống thang máy không phòng máy. Chỉ khác về tỷ số chuyền và số puly lắp đặt.
Thang máy có phòng máy là dạng thang máy truyền thống được sử dụng từ khi ngành thang máy ra đời. Mang những ưu điểm tối đa cho người sử dụng.

Thang máy có phòng máy
Thang máy có phòng máy sử dụng không gian một cách riêng biệt giữa khu vực đặt động cơ thang máy và khu vực hoạt động của cabin.. Đảm bảo tính an toàn tuyệt đối cho người sử dụng.
Ưu điểm:
Nhược điểm:
Tốn chiều cao xây dựng, nhất là ở các khu đô thị hạn chế chiều cao.
Quá trình thi công phòng máy của thang máy có phòng máy phải đảm bảo các yêu cầu về kỹ thuật, kết cấu cũng như về kích thước. Sau đây chúng tôi sẽ đưa ra một số các chỉ tiêu về phòng máy thang máy để bạn tham khảo thêm.
Phòng máy thang máy đảm bảo về kích thước:
Đối với mỗi loại thang máy bạn cần phải thiết kế đúng và đủ kích thước trong lòng phòng máy để phù hợp với kích cỡ động cơ cũng như thiết bị trong thang máy.
Đối với thang máy tải trọng nhỏ hơn 350kg thì người ta thường xây hố thang máy có kích thước chiều cao từ 1300mm trở lên.
Thang máy có tải trọng 450kg thì chiều cao từ 1500mm trở lên.
Kích thước chiều cao phòng máy cao hơn do động cơ lớn hơn, chiều cao động cơ lớn hơn.
Mỗi loại thang máy đều có một đặc tính kỹ thuật riêng nên khi lắp đặt bạn cần được tư vấn chi tiết và hiệu quả nhất.
Câu trả lời là không. Nhưng đối với loại thang máy không phòng máy chiều cao hố thang máy vẫn phải đảm bảo chiều cao an toàn.
Ví dụ như loại thang máy không hộp số dành cho thang máy 350kg thì bạn phải nâng hố thang máy tại vị trí hố thang máy lên thêm khoảng 1m so với chiều cao tầng bình thường.
thang máy loại 450kg thì bạn phải xây cao hơn khoảng 1.5m.
Thiết kế sàn phòng máy thang máy:

Thiết kế sàn phòng máy thang máy gia đình
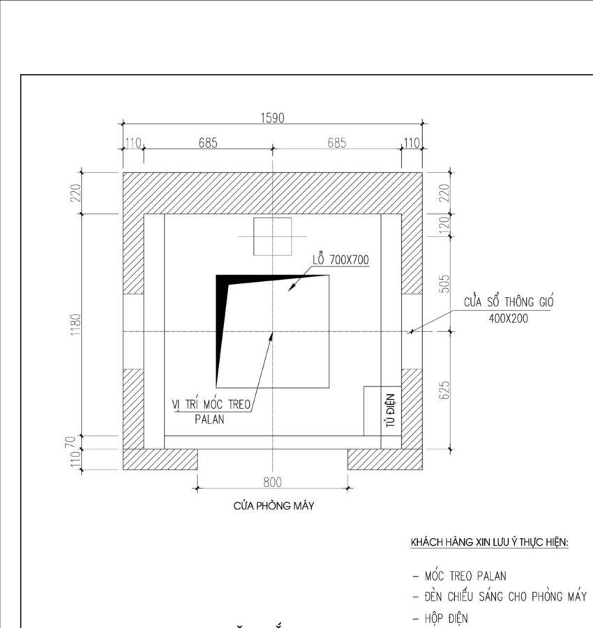
Sàn phòng máy thang máy có kích thước khoảng 700mm x 700mm chính giữa để thả cáp thang máy. Ngoài ra sàn phòng máy thang máy còn có kích thước trừ 200mm x 200mm lùi về phía sau đối với đối trọng sau và hông bên phải đối với đối trọng hông.
Kết cầu sàn phòng máy thang máy:
sàn phòng máy thang máy thường dày từ 100mm đến 150mm. được bao quanh bằng dầm 200mm mục đích sau này khi lắp đặt thang máy thì đài I hố thang máy sẽ gác lên dầm này. Dầm được liên kết với các cột là chịu lực chính sau này.

Mặt cắt qua vị trí phòng máy thang máy
Phía trên sàng phòng máy có mọc treo ba lăng mục đích sau này lắp đặt thang máy thì sẽ móc để kéo động cơ và các thiết bị khác từ đáy hố pít lên thang máy.
Trên đây là những thông tin cần thiết để bạn có cái nhìn tổng quan về Thang máy không phòng máy và Thang máy có phòng máy.
Mọi thông tin chi tiết quý khách có thể liên hệ với công ty thang máy Tân Phát theo thông tin sau:
CÔNG TY THANG MÁY TÂN PHÁT
Địa chỉ: số 531 đường Nguyễn Văn Cừ, P. Hồng Hải, Tp. Hạ Long, Quảng Ninh
Điện thoại: 0913.855.638
Website: thangmaytanphat.com