Danh mục sản phẩm
Phụ kiện thang máy
Tin tức
Cập nhật: 13-05-2021 03:39:29 | Tin tức | Lượt xem: 704
Các bài viết trước chúng tôi đã giới thiệu đến bạn về thang máy gia đình các loại tải trọng 200kg, 300kg, 350kg, 450kg, Nhưng hiện tại chúng tối nhận thấy có rất nhiều các công trình dân dụng xây dựng với các mục đích khác nhau như cho thuê văn phòng hoặc kết hợp kinh doanh. Vậy nếu không có thông tin về thang máy loại 550kg thì quả là một trong những thiếu sót lớn.
Tham khảo: Thang máy tải hàng tải trọng lớn
Những công trình có thể trừ được kích thước thang máy khoảng 1700mm x 1700mm thì bạn có thể nghĩ đến việc lắp một chiếc thang máy tải trọng 550kg dành cho 7 người đi 1 lần.
Để lắp thang máy loại này người ta thường sử dụng cho các công trình có mục đích khác nhau như: Khách sạn mini, văn phòng cho thuê, nhà trọ, sản xuất vận chuyển hàng hóa hoặc các công trình cho thuê mặt bằng để kinh doanh.

Thang máy 550kg
Hố thang máy loại này cũng có cấu tạo giống thang máy tải trọng 350kg, 450kg, 630kg, 750kg… được cấu tạo từ: Hố pít, hố thang, OH và phòng máy. Dưới đây ta sẽ đi sâu hơn về cấu tạo của các thành phần này.
Hố pít thang máy : Được định nghĩa là phần âm xuống so với mặt cos nền tầng dưới cùng. Độ sâu của hố pít trong khoảng từ 600mm đến khoảng 1200mm là có thể lắp được thang máy.
Dưới hố pit yêu cầu kỹ thuật là chống thâm, bê tông dưới đáy đủ dày để đóng giảm chấn.
Thiết bị được lắp đặt dưới hố pít thang máy: Bao gồm 1 cọc giảm chấn cabin và một cọc giảm chấn đối trọng. Hệ thống báo bằng tầng và giới hạn hành trình của thang máy.
OH trong thang máy: Viết tắt của Overhead là phần khá quan trọng khi thiết kế và xây dựng thang máy. Chiều cao OH với thang máy có phòng máy tiêu chuẩn là 3800mm, với thang máy không phòng máy là 4200mm.
Phòng máy thang máy: Đối với loại thang máy 550kg thì động cơ thang máy khá lớn so với động cơ của thang máy 350kg. Do vậy khi xây dựng phòng máy của thang máy 550kg sẽ có chiều cao là 1500mm trở lên.
Chất lượng của một chiếc thang máy 550kg không chỉ được đánh giá qua nguồn gốc xuất xứ của thiết bị mà còn được đánh giá qua kỹ năng lắp đặt của người thợ. Đối với những thợ lắp đặt giàu kinh nghiệm thì người sử dụng sẽ yên tâm hơn về chất lượng hoạt động sau này của thang máy.
Mỗi mẫu cabin thang máy đều được sản xuất theo tiêu chuẩn chất lượng. Theo mẫu mã mà khách hàng lựa chọn. Có rất nhiều các loại mẫu mã vách cabin thang máy mà người ta có thể chọn lựa được.
Một số các loại vật liệu làm cabin thang máy:
Thiết kế cabin thang máy 550kg với vật liệu inox:

Cabin thang máy tiêu chuẩn
Mẫu tay vịn và trần thang máy 450kg:

Mẫu trần thang máy
Mẫu đá sàn thang máy, xem thêm chi tiết tại:

Mẫu sàn thang máy 550kg để khách hàng lựa chọn
Mẫu nút bấm thang máy:

Nút bấm thang máy 450kg
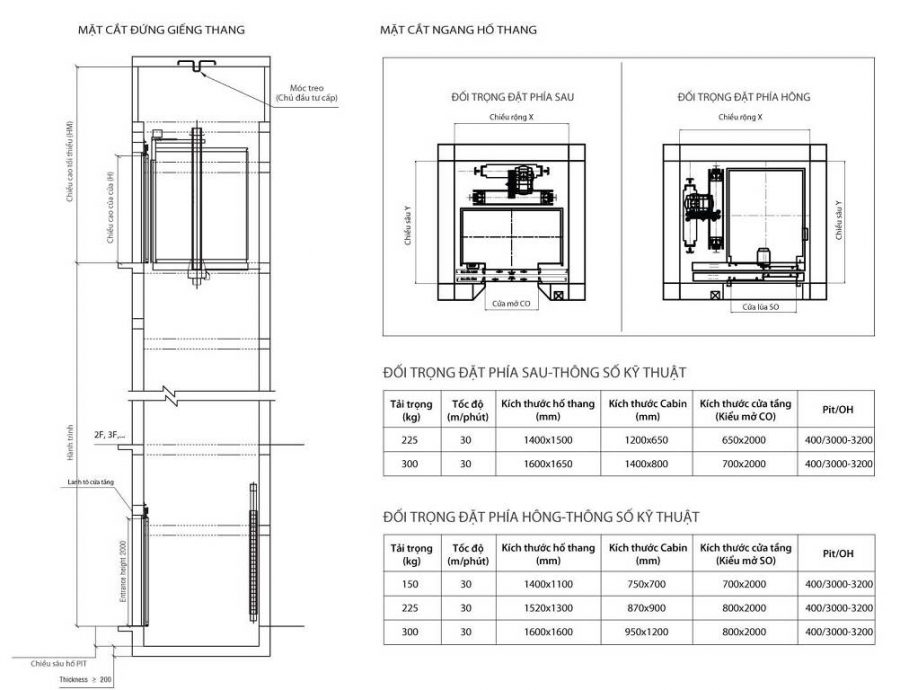
Thiết kế hố thang máy loại 550kg:

Thiết kế thang máy 550kg
Công ty chúng tôi sản xuất cabin của thang máy theo hiện trạng công trình nhưng bạn đừng lo vì nếu kích thước của bạn có lớn hơn 1 chút cũng không bị tăng giá thang máy.
Tham khảo về báo giá thang máy gia đình 450kg các tải trọng khác
Giá thang máy mitsubishi 550kg phụ thuộc vào nhiều yếu tố: Loại phòng máy và không phòng máy
Tốc độ thang máy, số tầng, loại thang máy nhập khẩu và liên doanh.
Giá thang máy chỉ từ 290 triệu. Để biết thêm chi tiết bạn vui lòng gọi điện đến số 0913.855.638 để biết thêm thông tin chi tiết về thang máy.
Để được cung cấp dịch vụ, lắp đặt, bảo trì cho dòng sản phẩm thang máy gia đình, xin vui lòng liên hệ:
CÔNG TY THANG MÁY TÂN PHÁT
Hotline: 0913.855.638 (có zalo)
Email: thaiduongelevator0812@gmail.com