Sử dụng khung thép hay khung bê tông để thi công thang máy đều có những ưu nhược điểm khác nhau. Hiểu rõ những ưu nhược điểm này bạn có thể tính toán và xây dựng được hố thang phù hợp. Tuy nhiên đối với kết cấu thép khung thang máy bạn chỉ nên chọn khi.
Diện tích xây dựng nhỏ
Là nhà cải tạo mà vị trí đặt thang máy có kích thước hạn chế, cần thời gian thi công nhanh và phương án thi công sạch sẽ
Nếu là thang máy quan sát hố thang được ốp bằng kính
Nếu chủ đầu tư chịu chi, chênh lệch chi phí giữ dựng khung thép và cột bê tông không quá quan trọng.
Khung thang máy bê tông cốt thép.
Ưu điểm của khung thang máy bê tông cốt thép.
- Chi phí thi công phải chăng do vật liệu xây dựng thân thiện, phổ biến.
- Liên kết với kết cấu của công trình dễ dàng, mang tính đồng bộ cao.
- Có độ bền cao
- Không gặp nhiều khó khăn khi thi công vì cách xây dựng khá đơn giản.
Nhược điểm
- Đối với những căn nhà sửa chữa, cải tạo, thời gian thi công thường kéo dài do mọi quy trình đều phải bắt đầu lại, không thuận tiện như nhà đang xây, có sẵn vật liệu, dụng cụ xây dựng và đội ngũ thợ.
- Tốn kém diện tích bởi cột và tường có kích thước tối thiểu 200x200mm, dày 20mm
- Sai số xây dựng lớn
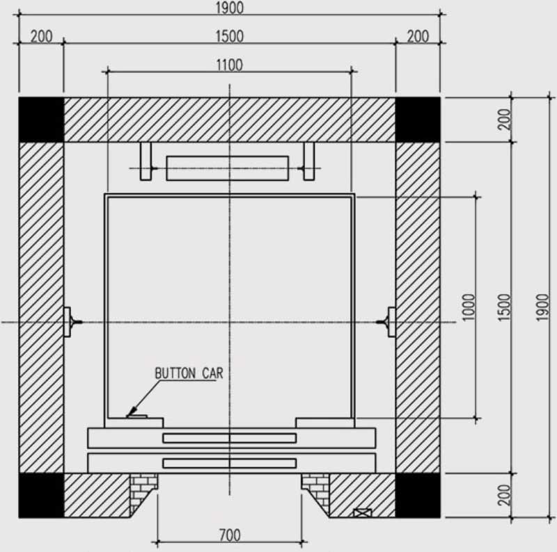
Bản vẽ khung thang máy bê tông cốt thép.

Khi nào nên chọn khung thang máy bằng cột bê tông cốt thép.?.
Nên dựng cột bê tông tường gạch nếu:
- Diện tích xây dựng thoải mái
- Là nhà xây mới
.jpg)
Thi công khung thép thang máy
Công ty thang máy tân phát là đơn vị chuyên thi công các công trình liên quan đến kết cấu thép uy tín hàng đầu tại khu vực Phía bắc. chuyên sản xuất gia công kết cấu thép, khung kèo thép, dầm thép. Chúng tôi đã thi công hàng ngàn dự án liên quan đến kết cấu thép nói chung và hạng mục thi công khung thép thang máy nói riêng. Tân Phát xin gửi đến quý nhà thầu và khách hàng báo giá gia công và thi công lắp dựng khung thép của thang máy. Chúng tôi rất hân hạnh nếu được hợp tác và đóng góp một phần nhỏ và sự thành công của dự án thi công thang máy.