Danh mục sản phẩm
Phụ kiện thang máy
Tin tức
Cập nhật: 29-03-2022 12:38:51 | Tin tức | Lượt xem: 683
Muốn sử dụng thang máy tại các tòa nhà cao tầng một cách an toàn, hiệu quả thì ngay từ khâu thiết kế thang máy cần phải được đặc biệt quan tâm. Dưới đây là 6 tiêu chuẩn thiết kế thang máy nhà cao tầng cơ bản. Bạn đọc cùng tham khảo để hiểu rõ hơn về khâu thiết kế quan trọng này nhé.
Muốn sử dụng thang máy tại các tòa nhà cao tầng một cách an toàn, hiệu quả thì ngay từ khâu thiết kế thang máy cần phải được đặc biệt quan tâm. Dưới đây là 6 tiêu chuẩn thiết kế thang máy nhà cao tầng cơ bản. Bạn đọc cùng tham khảo để hiểu rõ hơn về khâu thiết kế quan trọng này nhé.

Bản thiết kế thang máy cho nhà cao tầng
Sử dụng thang máy cho nhà cao tầng đang là xu hướng tất yếu hiện nay. Tuy nhiên, tình trạng xuống cấp trầm trọng về chất lượng đang diễn ra khá phổ biến. Hậu quả là gây mất an toàn cho người sử dụng, lãng phí chi phí đầu tư. Dưới đây là những nguyên nhân của tình trạng nêu trên:
Ngay từ đầu lựa chọn dòng thang máy kém chất lượng, hoặc không phù hợp với kiến trúc công trình
Sai sót khi lắp đặt thang máy do không kiểm tra kỹ về độ ồn động cơ, độ rung lắc…
Thang máy không kiểm định chặt chẽ đúng quy định, đúng thời hạn
Không thực hiện đúng lịch bảo trì, bảo dưỡng định kỳ thang máy
Để hạn chế tình trạng xuống cấp chất lượng thang máy nhà cao tầng, mỗi một gia đình và chủ đầu tư ngay từ khâu chọn thang máy tải khách cần phải hiểu rõ về dòng thiết bị này. Cần chọn những sản phẩm tuân thủ nghiêm chỉnh các tiêu chuẩn thiết kế thang máy nhà cao tầng.
.png)
Tiêu chuẩn an toàn đối với thang máy nhà cao tầng
Đây là yêu cầu đầu tiên khi đề cập đến các tiêu chuẩn thiết kế thang máy nhà cao tầng. Tiêu chuẩn an toàn nói chung được quy định rõ trong các văn bản pháp lý, cụ thể gồm:
Đối với các nhà cao tầng trên 10 tầng thì thường kích thước cabin vào khoảng 1400mm x1300mm và tải trọng tối thiểu 900kg đối với thang chở người.
Còn nếu có thang tải hàng thì tải trọng thường từ 1500kg trở lên
Theo quy định của Bộ Xây Dựng phân rõ ra số lượng thang máy cho từng loại công trình cao tầng. Chẳng hạn, nhà chung cư từ 6 tầng trở lên phải có tối thiểu 1 thang máy, 9 tầng trở lên phải có ít nhất 2 thang máy. Tải trọng một thang máy không nhỏ hơn 400kg. Nếu có một thang máy chuyên dụng vừa xe cấp cứu thì tải trọng không nhỏ hơn 600kg
Thang máy phải được bố trí gần lối vào của tòa nhà, với cabin đủ rộng, có đủ tay, hệ điều khiển và nút bấm thuận lợi cho cả người khuyết tật sử dụng. Đặc biệt, hố thang máy không được bố trí cạnh các phòng chính. Nếu vì yếu tố diện tích bắt buộc phải gần thì cần có giải pháp cách âm. Thiết kế thang máy cần có đầy đủ hệ thống thông gió, chống ẩm. Không được thiết kế hệ thống bể nước, các đường ống cấp nước và cấp nhiệt trên buồng thang máy.
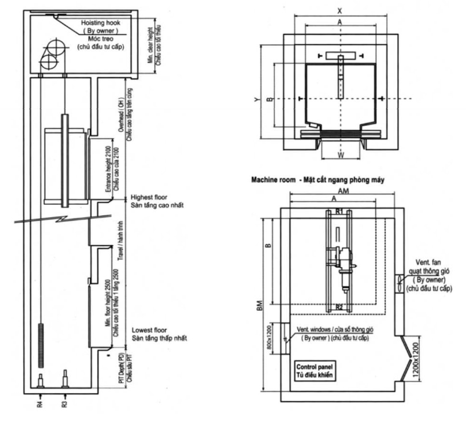
Phòng máy chính là nơi chứa các bộ phận quan trọng của một chiếc thang máy, như máy kéo, tử điện. Do vậy, yêu cầu phải chống thấm tuyệt đối. Phòng máy cần được thiết kế có đủ hệ thống thông gió để đảm bảo thoáng mát.
Khi thiết kế phòng máy, cần đảm bảo chiều cao phù hợp với trọng tải của thang. Nếu thang máy có tải trọng dưới 350kg thì phòng máy cần có chiều cao tối thiểu là 1500mm. Còn với những thang máy có tải trọng từ 450kg trở lên thì chiều cao tối thiểu của phòng máy là 1600mm
Phòng đệm hay còn gọi là sảnh, là nơi người dùng thang máy hoặc hàng hóa đứng chờ thang. Khi thiết kế vị trí lắp đặt thang máy cho nhà cao tầng, cần đảm bảo yêu cầu về chiều rộng của phòng đệm.
Nếu thang chở người có tải trọng 320kg thì phòng đệm cần có chiều rộng tối thiểu là 1,2m
Nếu thang chở người có tải trọng 500kg thì phòng đệm cần có chiều rộng tối thiểu là 1,4m
.png)
Yêu cầu về kích thước sảnh trước thang máy
Tân Phát hiện là nhà cung cấp các sản phẩm thang máy chính hãng tại Việt Nam. Các dòng sản phẩm thang máy tại Hexacorp vô cùng đa dạng, từ thang máy tải khách cho đến thang máy tải hàng, xuất xứ từ nhiều quốc gia trên thế giới, với các mức tải trọng khác nhau.
Tất cả các sản phẩm thang máy tại Tân Phát đều đảm bảo đáp ứng đầy đủ các tiêu chuẩn thiết kế thang máy gia đình cho nhà cao tầng. Bởi vậy khách hàng hoàn toàn an tâm và hài lòng khi lựa chọn thiết bị cho gia đình, công trình của mình. Đặc biệt, đội ngũ kỹ sư giàu kinh nghiệm tại Tân Phát sẽ mang tới các dịch vụ lắp đặt, bảo trì, bảo dưỡng trọn gói, đảm bảo chất lượng, tuổi thọ của thang máy cao nhất.
Với tất cả những thông tin nêu trên, mong rằng bạn sẽ hiểu rõ hơn về các tiêu chuẩn thiết kế thang máy nhà cao tầng. Nếu còn bất cứ thắc mắc nào liên quan đến các sản phẩm thang máy cao cấp.
Hãy liên hệ với Tân Phát qua Hotline: 0913.855.638 để được tư vấn nhé.
Mọi chi tiết xin liên hệ
CÔNG TY THANG MÁY TÂN PHÁT
Địa chỉ : Số 531 - Đường Nguyễn Văn Cừ - P Hồng Hải - Tp Hạ Long - Quảng Ninh
Email : thaiduongelevator0812@gmail.com
Hotline : 0913.855.638