Danh mục sản phẩm
Phụ kiện thang máy
Kiến trúc & Thang máy
Cập nhật: 01-09-2023 03:27:38 | Kiến trúc & Thang máy | Lượt xem: 1034
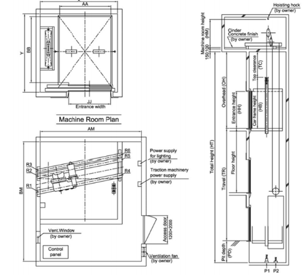
Các chi tiết trong bản vẽ thang máy gia đình giúp khách hàng có cái nhìn bao quát về toàn bộ nhựng thiết kế của thang máy. Đồng thời, cung cấp chính xác những số liệu cụ thể để nhân viên thi công, lắp đặt thang máy làm chính xác từng vị trí, đặt thang máy đúng nơi quy định và tiết kiệm diện tích, không gian sản xuất.

Bản vẽ thang máy gia đình là bản thiết kế những đặc điểm kỹ thuật bao quát toàn bộ sản phẩm như: Phân loại thang máy, số điểm dừng, tải trọng thang máy, công suất vận hành, hành trình di chuyển của thang máy, kiểu cửa cabin, kích thước cabin, kích thước hố thang, kích thước của tầng, động cơ thang máy, nguồn điện cung cấp chính cho toàn bộ thang máy, nguồn điện chiếu ánh sáng trong cabin.
.jpg)
Bản vẽ bao gồm: bản vẽ thể hiện mặt cắt dọc hố thang, bản vẽ thể hiện mặt cắt ngang hố thang, bản vẽ thể hiện mặt cắt ngang phòng máy. Mỗi bản vẽ đều được thiết kế đầy đủ, chi tiết, chính xác từng số liệu, dữ liệu thang máy.
Nhân viên kỹ thuật có chuyên môn sẽ khảo sát vị trí mà bạn cần lắp thang máy, tiến hành đo vẽ chính xác từng chi tiết rồi tư vấn bạn chọn lựa dòng thang máy gia đình phù hợp nhất với công trình của bạn.

Như vậy, thiết kế bản vẽ từng chi tiết của thang máy gia đình đem lại nhiều lợi ích cho các công trình cần lắp đặt thang máy. Giúp giảm đáng kể chi phí thiết kế, thi công và lắp đặt, đồng thời, tạo điều kiện thuận lợi cho quá trình sử dụng và bảo trì thang máy về sau.

Các chi tiết trong bản vẽ thang máy gia đình
Bản vẽ chi tiết thang máy gia đình thể hiện rõ ràng, chính xác, đầy đủ thông tin với những số liệu cụ thể về: Cửa thang máy, các thông số thang máy, chiều rộng của công trình trong từng thời điểm trước và sau khi đã hoàn thiện, chiều cao của cửa thang, kích thước và vị trí của bảng điều khiển lệnh gọi tầng,…

Các chi tiết trong bản vẽ thang máy gia đình bao gồm những thông tin cơ bản sau:
Bản vẽ thể hiện mặt cắt dọc hố thang: Được thiết kế theo hình chiếu dọc toàn bộ đặc điểm, kết cấu, diện tích của hố thang. Trong bản vẽ sẽ thể hiện các thông tin về độ cao của cửa thang máy, độ cao của từng tầng, chiều cao của tầng trên cùng và chiều cao của phòng máy.
Nhìn vào bản vẽ cắt dọc, bạn có thể thấy được những chi tiết về vị trí lắp đặt máy kéo, cabin thang máy, đối trọng, vị trí gắn lò xo có chức năng giảm chấn, dầm đỡ máy,…Những thông số về lực tác động vào hố thang cũng được vẻ đầy đủ, chi tiết bởi đây là những thông số quan trọng, giúp người thiết kế, lắp đặt thang máy tính toán chính xác kết cấu, diện tích khi xây hố thang.
Trong trường hợp hố thang được xây bằng gạch thì trong bản vẽ sẽ có thêm các thông tin về kích thước của dầm bê tông bao quanh các mặt hố và các tầng.

Bản vẽ thể hiện mặt cắt ngang hố thang: Thể hiện các chi tiết về kích thước chiều rộng cùng với chiều sâu của hố thang, kích thước cửa của hố thang trước khi lắp đặt và kích thước hoàn thiện của cửa hố thang sau khi đã lắp đặt xong.
Bên cạnh đó, bản vẽ cắt ngang còn thể hiện vị trí để lắp đặt bảng nhận lệnh gọi tầng, phản hồi lệnh theo yêu cầu của người dùng thang máy.

Bản vẽ thể hiện mặt cắt ngang phòng máy: Thể hiện các chi tiết về kích thước của chiều sâu, chiều rộng phòng máy cùng với vị trí lắp đặt phòng máy, vị trí gắn móc treo Palăng, quạt thông gió, lỗ kéo máy.
Bản vẽ bao xung quanh các cửa tầng: Bản vẽ thể hiện đầy đủ, chi tiết các vị trí lắp đặt cửa thang máy, chiều rộng và chiều cao của cửa cùng với vị trí để gắn bảng chọn tầng cần lên/ xuống.

Trên đây là những thông tin về bản vẽ thang máy gia đình, nếu bạn còn thắc mắc muốn giải đáp thêm, hãy liên hệ với chúng tôi qua Hotline: 0913.855.638 để được tư vấn miễn phí.
>>> Có thể bạn quan tâm: 15 Mẫu Thiết Kế Nhà 5x15m Có Thang Máy Được Chia Sẻ Từ Chuyên Gia
Thang Máy Tân Phát là một trong những công ty chuyên kinh doanh, lắp đặt thang máy hàng đầu tại Quảng Ninh. Tân Phát cam kết đem lại cho khách hàng những sản phẩm thang máy chất lượng nhất với nhiều ưu đãi và chính sách mua hàng hấp dẫn. Liên hệ ngay để nhận được những lời tư vấn giá trị đến từ kỹ sư nhiều kinh nghiệm:
-----------------------------------
